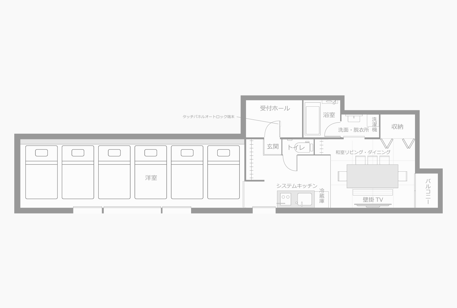
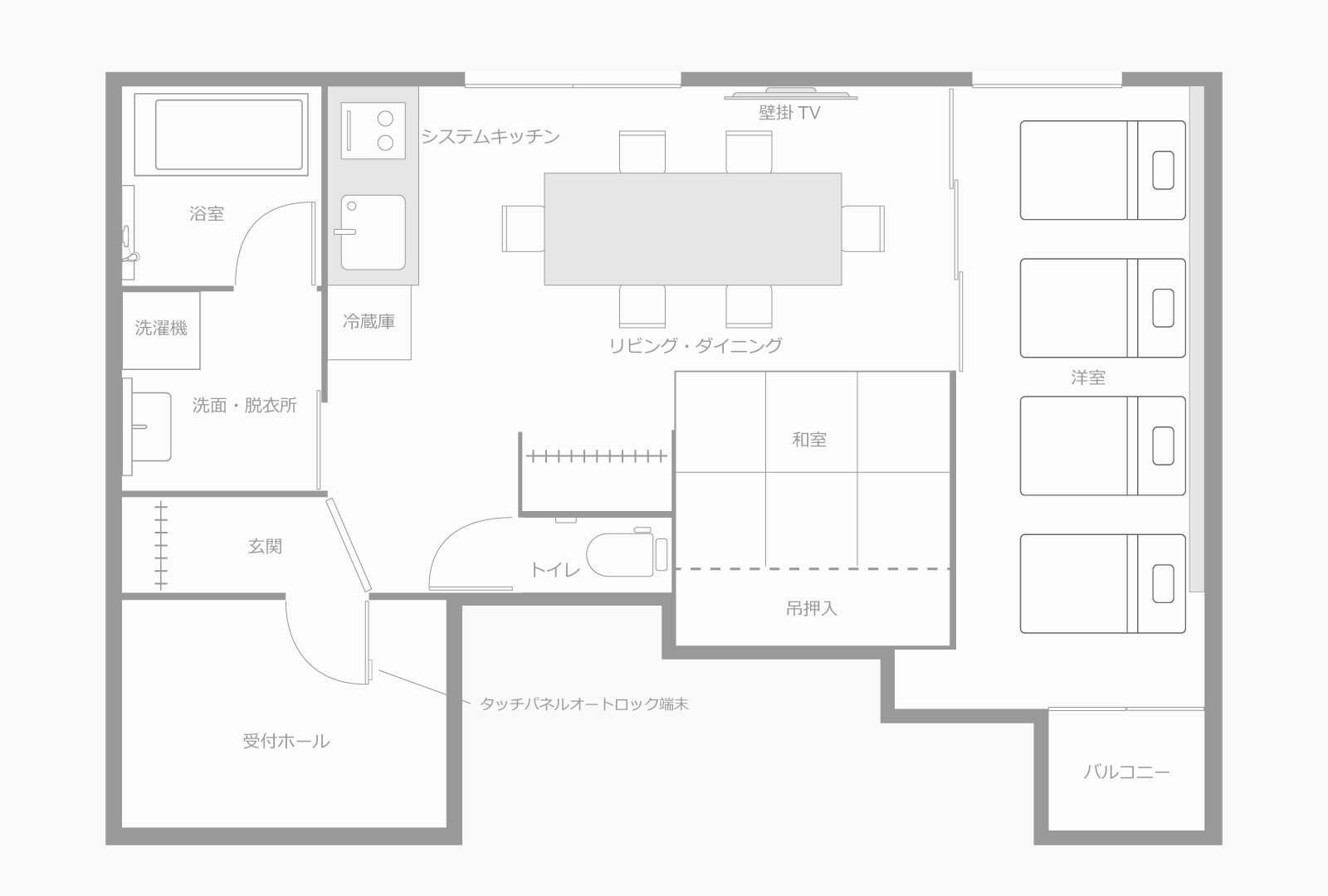
白を貴重とした和洋タイプのお部屋です。
シングルタイプのマットレスをご用意しております。
6名でご利用の場合は、畳スペースでご利用いただけます。
プレシャスホテル綾川
Room
客室
A-TYPE
光の間
HIKARI
定員
6名
6名
広さ:4ベッド+タタミ
(47㎡)
(47㎡)
洗面・風呂・トイレ
(セパレート)
(セパレート)
B-TYPE
空の間
SORA
定員
8名
8名
広さ:6ベッド+タタミ
(47㎡)
(47㎡)
洗面・風呂・トイレ
(セパレート)
(セパレート)
黒を貴重とした和洋タイプのお部屋です。
シングルサイズのマットレスをご用意しております。
8名でご利用の場合は、ダイニングテーブルを寄せて、リビングスペースにお布団を敷いてご利用いただくようになります。
シングルサイズのマットレスをご用意しております。
8名でご利用の場合は、ダイニングテーブルを寄せて、リビングスペースにお布団を敷いてご利用いただくようになります。
amenities
アメニティ
Equipment
設備
Living Dining
リビング・ダイニング
50インチTV / 大型テーブル
空気清浄機
空気清浄機
YouTubeやNetflix、Amazonプライム等を鑑賞できます。
※YouTube以外の他サービスは、自身でアカウントをお持ちの方のみご利用できます。
無料WiFi完備
Kitchen
キッチン
3口IHコンロ・キッチン
冷蔵庫・電子レンジ
炊飯器・鍋 / 電気湯沸し器
調理器具 / カトラリーセット
冷蔵庫・電子レンジ
炊飯器・鍋 / 電気湯沸し器
調理器具 / カトラリーセット
Bathroom
バスルーム
浴室暖房乾燥機 / シャンプー
コンディショナー
ボディソープ / 洗顔フォーム
ドラム式洗濯機
コンディショナー
ボディソープ / 洗顔フォーム
ドラム式洗濯機
Toilet
トイレ
暖房便座 / ウォシュレット
専用手洗い器
専用手洗い器
Tourist Attractions
観光スポット
綾川町は香川県の中心に位置しています。高松市内とこんぴらさんの中間に位置しておりますので、観光の拠点にピッタリです。
また、高松空港や国営まんのう公園、レオマワールドへの交通アクセスも良い場所です。
また、高松空港や国営まんのう公園、レオマワールドへの交通アクセスも良い場所です。
滝宮天満宮
受験生の合格祈願で有名な、学問の神様「菅原道真」ゆかりの神社。
車約1分 / 徒歩約5分
ことでん 滝宮駅
多くの鉄道ファンからも愛されている、大正15年に開業のレトロな建物の私鉄駅。
徒歩約5分
ヤドン公園
ポケモンの人気キャラクター「ヤドン」をモチーフにした6つの遊具のある公園。
車約3分
滝宮駅乗車⇨綾川駅下車
滝宮駅乗車⇨綾川駅下車
道の駅滝宮
新鮮な野菜から特産品やうどん、スイーツなどを楽しめる施設。香川県のお土産を買うならここ!
車約2分 / 徒歩約9分
イオンモール綾川
四国で最大級のイオンモール。映画館も併設されており、曜日に関係なく連日多くの方が利用している。
車約2分 / 徒歩約11分
国営讃岐まんのう公園
四国で唯一の国営公園。自然生態園、風花の庭、オートキャンプ場などいくつかのゾーンで構成されている。
車約21分
NEWレオマワールド
パレードやジェットコースター・大観覧車のアトラクションなど中四国最大の遊園地。
車約10分
滝宮駅乗車⇨岡田駅下車
滝宮駅乗車⇨岡田駅下車
高松空港
国内外で利用できる空港。国際線利用者増加に対応するため、増改増設を進めている。
車約17分
よくある質問
Q:アクセス情報を教えてください。▼
A:
<お車の場合> 府中湖スマートIC(高松自動車道)より車で4分ほどです。
<飛行機の場合> 高松空港より車で16分ほどです。
<徒歩の場合> ことでん滝宮駅より徒歩で4分ほどです。
<お車の場合> 府中湖スマートIC(高松自動車道)より車で4分ほどです。
<飛行機の場合> 高松空港より車で16分ほどです。
<徒歩の場合> ことでん滝宮駅より徒歩で4分ほどです。
Q:駐車場はありますか?▼
A:無料で2台分の駐車場がございます。(予約不要)
Q:チェックイン時間、チェックアウト時間を教えてください。▼
A:チェックインは15:00~24:00、チェックアウトは10:00となっております。
(宿泊プランによって異なる場合がございますので、詳細は各宿泊プランをご確認ください)
(宿泊プランによって異なる場合がございますので、詳細は各宿泊プランをご確認ください)
交通アクセス
| 施設名 | Precious Hotel綾川 (プレシャスホテル綾川) |
| 住所 |
〒761-2305
香川県綾歌郡綾川町滝宮169-3
プレシャスモール綾川2F-A・B
|
| 電話 | 087-810-1155 (株式会社あなぶきスペースシェア) |
| 最寄り | ことでん滝宮駅より徒歩5分 |
